Zac Arras Europe livraison
Lille Wazemmes (59)
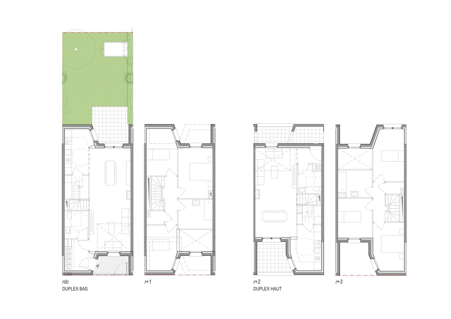
Le lot 9 est un projet de logements locatifs intermédiaires (LLI) de haute qualité, composé de 33 logements, dont 14 en intermédiaire et 19 en collectif. Le projet a été conçu en tenant compte du Pacte Lille Bas Carbone, un plan ambitieux de la métropole de Lille visant à réduire les émissions de gaz à effet de serre et à favoriser la transition énergétique. Le projet a été conçu pour offrir une expérience de vie optimale aux habitants avec une attention particulière portée à l’intimité des résidents.
Au-delà des normes thermiques et énergétiques, qui en imposant compacité et performance, peuvent parfois limiter le confort réel, ce projet, conçu depuis 2018, fait le pari de la qualité de vie au quotidien avec :
- Des pièces de vie spacieuses, dont 50% des séjours en double hauteur
- Une forme architecturale pensée pour favoriser des logements traversants ou à double orientation, gages de lumière naturelle, de ventilation croisée et de confort thermique été comme hiver
- Des loggias ou terrasses ouvertes sur des jardins généreux, sans vis-à-vis, protégés des regards grâce à des façades chanfreinées
- Une offre typologique variée : du T2 au T5, en simplex ou duplex, avec des accès différenciés :
-
- Accès direct depuis la rue, pour une sensation de maison individuelle
- Accès par coursive, dans un esprit d’habitat intermédiaire
- Distribution par ascenseur, dans une logique de logement collectif
- Un projet où l’usage guide la conception, pour des logements durables car désirables.
- Merci à 3F Notre Logis, pour leur confiance ! Et à toute l’équipe de conception et exécution.

Pour plus d’information :
ZAC Arras Europe
MAÎTRISE D’OUVRAGE
3F Notre Logis
MAÎTRISE D’ŒUVRE
• Architecte Mandataire Secteur / Clé Millet Architectes / bathilde millet, Angela Martinez Gomez
• BET TCE – Maîtrise d’œuvre d’exécution / NORTEC Ingénierie
• BET VRD-Paysage / QUALIVIA INGENIERIE
• BET Dépollution / BURGEAP
ENTREPRISE
• Entreprise générale / DEMATHIEU BARD CONSTRUCTION NORD
AUTRES INTERVENANTS
• SORELI
• Action Logement
• Ville de Lille
• Bureau de contrôle / BTP Consultants